ホームお知らせ1階および地下1階出入口のマット設置工事について(12月1日~12月22日予定)

1階および地下1階出入口のマット設置工事について(12月1日~12月22日予定)

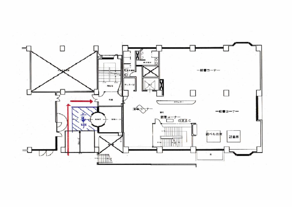
1階および地下1階出入口へ滑りにくいマット等を設置する工事を実施します。

そのため、12月1日・22日は、下の図の赤い矢印に沿って返却ポストを利用してください。

また、工事中は、地下1階の出入口に段差ができます。ご不便をお掛けしますが、注意しながら出入りをしてください。

※工事期間中は、作業音のほか、工事関係者や機材の出入り等ご迷惑をお掛けしますが、ご理解とご協力をお願いします。

\この記事をSNSにシェア/
TOPに戻る